نشان کن
کد آگهی: KP9022205751

نقشه کشی با اتوکد

در بندرعباس
در وبسایت دیوار  (چهارشنبه 20 شهریور 1404)
اطلاعات شغل:
نوع همکاری:  پیمان‌کاری/پروژه‌ای
نیاز به سابقه:  حداقل 1 سال
نحوه پرداخت:  توافقی
متن کامل آگهی:
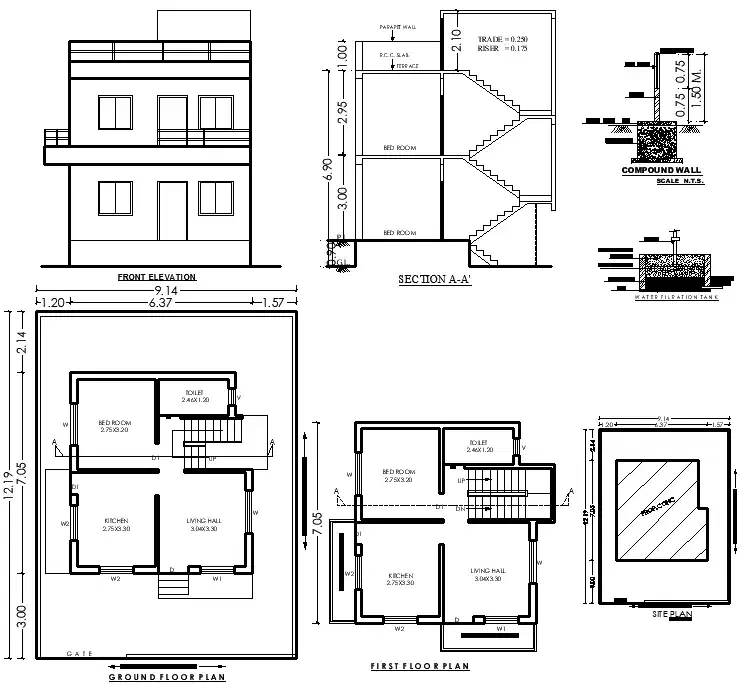
‍انجام کلیه خدمات نقشه‌کشی معماری با نرم‌افزار AutoCAD: ✅ طراحی و ترسیم پلان مسکونی و اداری ✅ نقشه‌های نما و مقطع ✅ آماده‌سازی نقشه‌ها برای شهرداری و نظام مهندسی ✅ ویرایش و اصلاح نقشه‌های قبلی ✅ تحویل سریع + کیفیت دقیق قیمت منصفانه و توافقی | ارتباط از طریق واتساپ و تماس
استخدام معماری، عمران و ساختمانی
مهندس معماری

این آگهی از وبسایت دیوار پیدا شده، با زدن دکمه‌ی تماس با کارفرما، به وبسایت دیوار برین و از اون‌جا برای این شغل اقدام کنین.

هشدار
توجه داشته باشید که دریافت هزینه از کارجو برای استخدام با هر عنوانی غیرقانونی است. در صورت مواجهه با موارد مشکوک،‌ با کلیک بر روی «گزارش مشکل آگهی» به ما در پیگیری تخلفات کمک کنید.
گزارش مشکل آگهی
تماس با کارفرما
این آگهی رو برای دیگران بفرست
نشان کن
گزارش مشکل آگهی
جستجوهای مرتبط
جمعه 19 مهر 1404، ساعت 11:23